О́СМОС
-
Рубрика: Химия
-
-
Скопировать библиографическую ссылку:
О́СМОС (от греч. ὠσμός – толчок, давление), самопроизвольный перенос растворителя через полупроницаемую мембрану, не пропускающую растворённое вещество и разделяющую два раствора разл. концентрации или чистый растворитель и раствор. Явление открыто франц. естествоиспытателем Ж. А. Нолле в 1748; измерение осмотич. давления впервые произвёл В. Пфеффер в 1877.
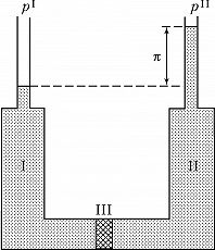
Самопроизвольный массоперенос растворителя из области I в область II возникает (рис.) вследствие неравенства химич. потенциалов растворителя $\mu_1^\text{I}$ и $\mu_1^\text{II}$ в этих областях. Для идеальных или бесконечно разбавленных растворов при постоянной темп-ре $\mu_1^\text{I}=\mu_1^\text{0}+RT\ln p_1^0$ и $\mu_1^\text{II}=\mu_1^\text{0}+RT\ln p_1$, где $\mu_1^0$ и $p_1^0$ – химич. потенциал и давление насыщенного пара чистого растворителя, $p_1$ – парциальное давление в области II, $T$ – абсолютная темп-ра, $R$ – газовая постоянная. Так как $p_1^0 \gt p_1$, то $\mu_1^\text{I} \gt \mu_1^\text{II}$, что определяет перенос растворителя через мембрану. Избыточное гидростатич. давление, возникающее в области II, препятствует диффузии растворителя, в результате устанавливается равновесие. Величина осмотич. давления $\pi$ принимается равной равновесному гидростатич. давлению столба жидкости в капилляре, находящемуся в области II. Значение $\pi$ можно определить и как давление, которое надо приложить к раствору, чтобы прекратить перенос растворителя.
Зависимость осмотич. давления от состава для идеальных растворов описывают уравнением ван Лаара: $\pi V_1^0=-RT\ln x_1$ или $\pi V_1^0=-RT\ln (p_1^0/p_1)$, где $V_1^0$ – мольный объём чистого растворителя, $x_1$ – его мольная доля. Из уравнения следует, что осмотич. давление пропорционально $\ln x_1$. Этой же величине пропорциональны понижение темп-ры замерзания и повышение темп-ры кипения идеальных растворов по сравнению с чистым растворителем. Перечисленные свойства растворов, содержащих нелетучие растворённые вещества, называются коллигативными. Они зависят от природы растворителя и концентрации растворённого вещества и не зависят от свойств частиц.
Зависимость осмотич. давления от молярной концентрации растворённого вещества $c_2$, когда она мала, выражается законом Вант-Гоффа: $\pi=c_2RT$ (открыт в 1887). Уравнение аналогично уравнению состояния идеального газа, но это сходство не имеет обоснования, оно случайно. Для разбавленных растворов электролитов уравнение Вант-Гоффа имеет вид: $\pi=ic_2RT$, где $i=1+\alpha(\nu-1)$, $\alpha$ – степень диссоциации электролита, $\nu$ – число ионов, на которые распадается молекула электролита. В случае сильных электролитов, полностью диссоциирующих на ионы, при высоких разбавлениях $\pi=\nu c_2RT$, а для раствора произвольной концентрации $\pi=\nu Фc_2RT$, где $Ф$ – практический осмотич. коэф., непосредственно связанный с активностью растворённого вещества.
Наиболее существенная черта всех осмотич. процессов – увеличение объёма раствора. Оно всегда имеет место, если молекулы растворённого вещества не могут выйти из раствора, а растворитель способен проникать в раствор. Это условие может выполняться даже при отсутствии видимой полупроницаемой перегородки. Напр., если две фазы содержат нелетучий компонент и не разделены перегородкой, а находятся под общим колпаком, из-под которого откачан воздух, то за счёт разности давлений насыщенного пара произойдёт «перекачка» растворителя из раствора меньшей концентрации в раствор большей концентрации нелетучего компонента. Такой процесс называют «изотермич. перегонкой».
Если давление над раствором в области II с помощью нагнетат. насоса повысить выше осмотического, то равновесие нарушится и будет происходить перенос растворителя из более концентриров. раствора в менее концентрированный (или в чистый растворитель). Это явление называют обратным осмосом. Обратный О. широко используют для деминерализации, т. е. снижения в воде общего солесодержания или удаления из неё к.-л. ионов. Деминерализация, направленная на получение питьевой воды, называется опреснением. Если солевой состав не отвечает нужным требованиям, он может быть скорректирован добавкой необходимых компонентов. Доля установок обратного О. на рынке разл. технологий опреснения воды самая высокая (42%). Наиболее крупные установки производительностью 1130 и 5680 м3/ч расположены в Санта-Барбаре (США) и в Сингапуре; стоимость 1 м3 опреснённой воды соответственно составляет 2 и 0,48 долл. США.
Осмотич. давление измеряют в статич. или динамич. осмометрах. В статич. осмометрах осмотич. давление определяют непосредственно по высоте столба жидкости, которая устанавливается в результате проникновения растворителя через мембрану в раствор. В динамич. осмометрах находят зависимость скорости переноса растворителя через мембрану от перепада давления по обе её стороны (т. н. противодавление $\Delta p$). Скорость движения растворителя становится равной нулю при $\Delta p=\pi$. Путём экстраполяции противодавления до нулевой скорости определяют осмотич. давление.
Осмотич. давление учитывают при расчётах аппаратов обратного осмоса. О. используют при определении молекулярной массы полимеров. Мольно-объёмную концентрацию $c_2$ в уравнении Вант-Гоффа можно представить в виде: $c_2=\rho/M_2$, где $M_2$ – молекулярная масса полимера, $\rho$ – масса полимера в единице объёма раствора. Тогда уравнение Вант-Гоффа будет выглядеть следующим образом: $\pi/\rho=RT/M_2$. Согласно теории Флори – Хаггинса с учётом неидеальности $\pi/\rho=RT[(1/M_2)+\text{B}\rho]$, где В – коэф., учитывающий взаимодействие молекул. Для определения молекулярной массы измеряют осмотич. давление ряда разбавленных растворов с разной концентрацией исследуемого полимера в одном и том же растворителе и экстраполируют зависимость $\pi/\rho=f(p)$ до значения $\rho=0$. Поскольку полимеры полидисперсны, то найденная молекулярная масса является усреднённой по числу молекул. Диапазон измеряемых с помощью О. молекулярных масс составляет 103–106.
Животные и растит. клетки представляют собой микроскопич. осмотич. системы, поскольку у клетки оболочка и прилегающая к ней плазмалемма обладают свойствами полупроницаемых мембран. Солевой состав биологич. жидкостей и клеток, характерный для каждого вида организмов, поддерживается избирательной проницаемостью мембран и активным транспортом ионов. Относит. постоянство осмотич. давления обеспечивается водно-солевым обменом. Если поместить клетки в дистиллированную воду, происходит набухание, а затем разрыв оболочек (осмотич. шок или лизис). В растворах с высокой концентрацией солей наблюдается падение осмотич. давления и коллапс клеток из-за потери воды (плазмолиз). Это явление используют, напр., при консервировании пищевых продуктов путём добавления больших количеств соли или сахара: микроорганизмы подвергаются плазмолизу и становятся нежизнеспособными.
Растворы с одинаковым значением осмотич. давления называются изотоническими. Растворы с осмотич. давлением бóльшим, чем у внутриклеточной жидкости, называются гипертоническими, с меньшим – гипотоническими. Один и тот же раствор для одного типа клеток может быть гипертоническим, для другого – изотоническим, для третьего – гипотоническим.
В тканях растений осмотич. давление составляет 0,5–2,0 МПа, у растений в пустынях – более 10 МПа. Гидростатич. давление, возникшее во внутриклеточных структурах в результате О., называется тургором. Это давление придаёт прочность и упругость тканям живых организмов. Если клетка отмирает, оболочка теряет свойство полупроницаемости, тургор исчезает (растение вянет). Осмотич. давление – гл. причина, обеспечивающая движение воды в растениях и её подъём от корней до вершины. Для роста и развития растений важно соотношение между осмотич. давлением почвенного раствора и клеточного сока. Растение может нормально развиваться лишь тогда, когда осмотич. давление клеточного сока больше осмотич. давления почвенного раствора.
Высокоорганизованные животные и человек отличаются относит. постоянством осмотич. давления; напр., в крови человека осмотич. давление составляет 0,78 МПа (7,7 атм) при 37 °С. Даже небольшое изменение осмотич. давления вызывает чувство дискомфорта. Так, чувство жажды обусловлено потребностью организма восстановить нормальное осмотич. давление введением воды после того, как оно было повышено, напр., употреблением солёной пищи. При болезненных явлениях локальные изменения осмотич. давления могут быть значительными. Напр., при воспалит. процессах происходит распад белков, что приводит к увеличению количества структурных частиц в очаге воспаления, повышению осмотич. давления и локальному оттоку воды из окружающих тканей. Так возникают отёки. В медицине обычно используют изотонич. растворы, но иногда применяют и гипертонические. Так, в хирургии гипертонич. повязками покрывают раны. Повязка оттягивает на себя жидкость и очищает рану от микроорганизмов и продуктов распада тканей.

